Oude situatie
plattegronden oude situatie
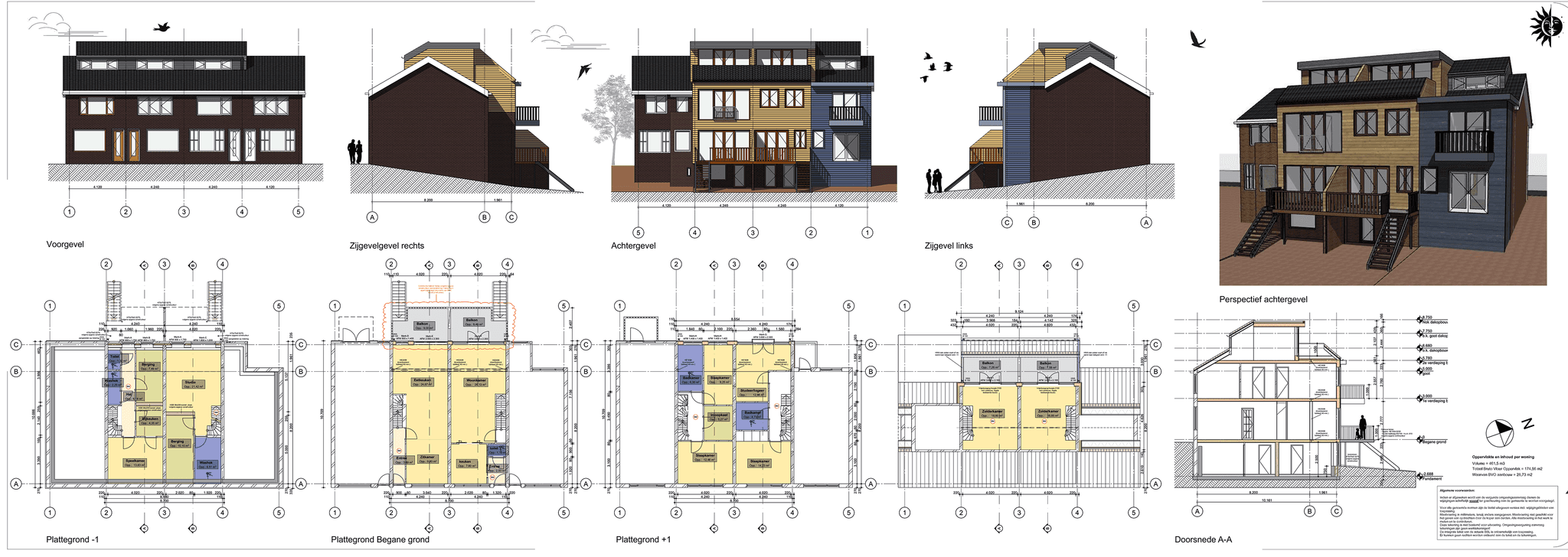
plattegronden nieuwe situatie
dijkwoning
Bergschenhoek
2024
Opdrachtgever
Particulier
Typologie
Woonhuis
Grootte
350 m2
Status
In aanbouw
Programma van wensen
Woning 1 (BVO van 175 m2)
- Aanbouw achtergevel over 4
verdiepingen (29 m2)
- Dakterras (7,5 m2)
- Terras op poten
met trap naar tuin (9,5 m2)
Woning 2 (BVO van 175 m2)
- Aanbouw achtergevel over 4
verdiepingen (29 m2)
- Dakterras (7,5 m2)
- Terras op poten
met trap naar tuin (9,5 m2)
toelichting op programma van wensen
De opdrachtgevers van deze dijkwoningen kozen bewust voor een lichtgewicht houten aanbouw. Het lage gewicht maakt deze constructie ideaal voor de delicate dijkligging รฉn stelt hen in staat om een groot deel van de bouw zelf uit te voeren. Hout biedt bovendien flexibiliteit in isolatiematerialen, van traditionele opties tot biobased keuzes. In dit project is uiteindelijk gekozen voor een kostenefficiรซnte combinatie van minerale wol en hardschuimplaten. Zo blijft de bouw eenvoudig en betaalbaar. Wil je meer weten over houten aanbouwen aan bestaande gebouwen? Lees meer in de onderstaande blog.
detailblad
Een traditionele benadering
Dit zijn de bouwmethoden die we voor dit project o.a. hebben toegepast.
Synthetische hardschuimisolatie (aardolie basis) zoals PIR, PUR, EPS en XPS zijn dampdicht dankzij hun gesloten celstructuur. Ze leveren dezelfde warmteweerstand als biobased isolatie, maar dan in een dunnere opbouw โ handig en ruimtebesparend!
houtskelet geรฏsoleerd met minerale wol.
Minerale wol, zoals glas- en steenwol, is dampopen, maar kan vocht niet zoals biobased materialen verspreiden en geleidelijk afgeven, wat kans op condensatie in de wand geeft. Het grote pluspunt van traditionele isolatie? Dunner, goedkoper en efficiรซnt. Het nadeel? Dampopen bouwen is niet aan te raden en ze houden de zomerwarmte minder goed buiten dan biobased materialen.
"Natuurlijke materialen waren vroeger de standaard en daar grijpen we nu - met het oog op een duurzame toekomst - weer op terug."









